7067 Camino Revueltos #312

San Diego, CA 92111

$ 659,900

Price

2

Beds

2

Baths

1,172 Sq. Ft.

$563 / Sq. Ft.

108 Days On Market

Favorite

Share

Have You Been Pre-Qualified? Start Now

Listing provided by agent Ana Maria Goodemote BRE# 01352420 at Coldwell Banker Realty.

Last Updated: 6 days ago

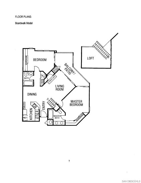
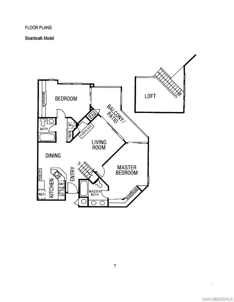
This stunning top-floor, end-unit condo offers the perfect blend of comfort, style, and convenience. With two spacious bedrooms, two full bathrooms, and a generous loft, the open layout is enhanced by soaring vaulted ceilings that flood the home with natural light. Thoughtfully updated throughout, the interior features an updated kitchen with stainless steel appliances and extended granite countertop, renovated bathrooms, energy-efficient dual-pane windows, and luxury vinyl plank flooring with cork backing. The home also includes a newer furnace (installed in 2023) and an upgraded water heater (2017). Step outside to your private balcony—an ideal spot for morning coffee or evening relaxation. This home also includes a two-car detached tandem garage for added convenience. Located in the sought-after City Scene community, residents enjoy access to a sparkling saltwater pool, a fully equipped fitness center, and BBQ areas for outdoor gatherings. With close proximity to USD, SDSU, Fashion Valley Mall, and major freeways, this beautifully upgraded condo offers both serenity and accessibility. Don’t miss your opportunity to own this light-filled top-floor retreat! ****

Show More
Property Type Condominium
Year Built 1988
MLS # 250040217SD
Listing Type Active
Heating Electric, Natural Gas, Fireplace(s), Forced Air
Pool Community, Salt Water
Laundry Electric Dryer Hookup

Payment Calculator

40% Complete (success)
80% Complete (danger)
20% Complete
80% Complete (danger)
60% Complete (warning)
Principal and Interest
Property Taxes
Homeowners' Insurance
HOA Dues
Mortgage Insurance
Image Calculator Icon Customize Calculations | Compare Mortgage Rates

Property Details for: 7067 Camino Revueltos #312

Interior Features

Bathroom Information
  • 2 full baths
Laundry Information
  • Electric Dryer Hookup
Fireplace Information
  • Living Room
  • Gas
Interior Features
  • Cathedral Ceiling(s)
Heating & Cooling
  • Electric
  • Natural Gas
  • Fireplace(s)
  • Forced Air

Parking / Garage, Multi-Unit Information, Location Details

Interior Information
  • Cathedral Ceiling(s)

Exterior Features

Pool & Spa Information
  • Community
  • Salt Water
  • Community

Property / Lot Details

Lot Information
Property Information
  • Attached
  • Tax Parcel Number: 4376112614

Nearby Businesses

  • Grocery Stores
  • Drug Stores
  • Coffee Shops
  • Restaurants
  • Health & Medical
  • Fitness & Activity
  • Arts & Entertainment
  • Nightlife & Bars
    Browse all businesses in San Diego, CA, 92111

    Tour This Condo

    FRIDAY

    16

    JAN

    SATURDAY

    17

    JAN

    SUNDAY

    18

    JAN

    MONDAY

    19

    JAN

    TUESDAY

    20

    JAN

    WEDNESDAY

    21

    JAN

    THURSDAY

    22

    JAN

    Schedule A Tour
    Ryan Case, Licensed Realtor & Team Lead

    Ryan Case

    Licensed Realtor & Team Lead

    619-314-5333 Contact Ryan Case
    Listing provided by agent Ana Maria Goodemote BRE# 01352420 at Coldwell Banker Realty.

    Last Updated: 6 days ago